Terrain à bâtir dans une nouvelle résidence

64 803 €

Description du bien

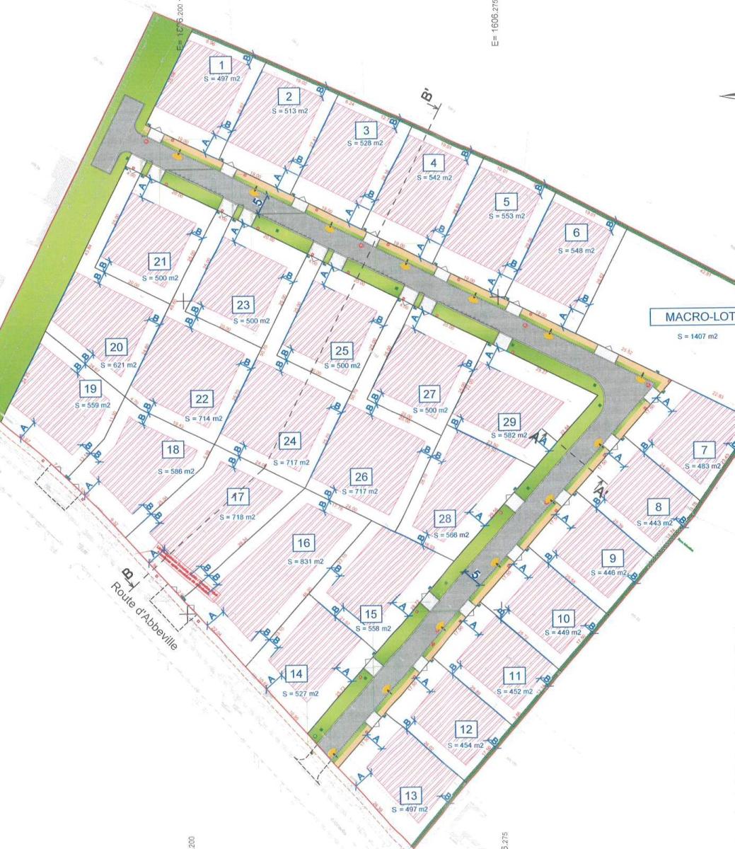
Terrain à bâtir au sein d'une nouvelle résidence au coeur de RUE. RUE est une commune agréable située à quelques kilomètres de St-Valéry sur Somme, Quend plage, Fort Mahon... Toutes les commodités sont disponibles dans cette petite ville. Terrains disponibles : 1. Surface : 497 m² prix 54 670,00 € / vendu 2. Surface : 513 m² prix 64 802,90 € 3. Surface : 528 m² prix 66 502,40 € 4. Surface : 542 m² prix 68 088,60 € 5. Surface : 553 m² prix 69 334,90 € 6. Surface : 548 m² prix 68 768,40 € 7. Surface : 483 m² prix 63 891,35 € 8. Surface : 443 m² prix 59 153,35 € 9. Surface : 446 m² prix 59 508,70 € 10. Surface : 449 m² prix 54 630,00 € / vendu 11. Surface : 452 m² prix 60 219,40 € 12. Surface : 454 m² prix 60 456,30 € 13. Surface : 497 m² prix 65 549,65 € 14. Surface : 527 m² prix 66 389,10 € 15. Surface : 558 m² prix 69 901,40 € 16. Surface : 831 m² prix 100 832,30 € 17. Surface : 718 m² prix 81 980,00 € / vendu 18. Surface : 586 m² prix 73 073,80 € 19. Surface : 559 m² prix 70 014,70 € 20. Surface : 621 m² prix 80 237,45 € 21. Surface : 500 m² prix 68 480,00 € 22. Surface : 714 m² prix 87 576,20 € 23. Surface : 500 m² prix 68 480,00 € 24. Surface : 717 m² prix 87 916,10 € 25. Surface : 500 m² prix 63 000,00 € / vendu 26. Surface : 717 m² prix 87 916,10 € 27. Surface : 500 m² prix 64 000,00 € / vendu 28. Surface : 556 m² prix 69 674,80 € 29. Surface : 582 m² prix 78 615,20 €
À propos du prix :
Montant : 64803 €
Dont 5373 € d’honoraires TTC inclus à la charge de l’acquéreur : 9.04% du prix du bien hors honoraires

Caractéristiques techniques

ChambresNon renseigné
MeubléNon
Terrasse / BalconNon
AscenseurNon
JardinNon
PiscineNon
ParkingNon
CaveNon

Une question sur cette annonce ?

=